מאחורי הקלעים: מתודולוגיית העבודה בסטודיו
תפקיד המעצב משלב ליווי אישי ודינמיקה רגישה. 🩺 הדיאלוג מבוסס על הקשבה לצרכים ולחזון, זיקוק הקונספט וקבלת החלטות מושכלות המונעות טעויות תכנוניות שעלולות לפגוע בתוצאה הסופית.
תהליך העבודה הממושך מייצר חיבור אישי והבנה מעמיקה של הרגלי היומיום, הדינמיקה המשפחתית ואופן השימוש בחלל. בניית האמון מאפשרת הגדרת פרוגרמה מדויקת המשקפת את אורח החיים האמיתי של השוהים בבית💆🏼.

עיצוב פנים חורג מיצירת הדמיות ויזואליות. המהות טמונה ביכולת לתרגם רעיונות לכדי שפה עיצובית קוהרנטית, בסנכרון מלא עם שאיפות הלקוח, ליצירת חלל בעל אמירה ברורה.

ב-Black Wall הדגש הוא על תכנון Custom-made. אנו בוחרים את הפרויקטים בקפידה, מתוך תפיסה שחיבור מקצועי ואישי הוא תנאי הכרחי להצלחת התהליך, גם אם המשמעות היא סינון פניות שאינן תואמות את ערכי הסטודיו.

מתודולוגיית עבודה: השלבים למימוש החזון
תהליך ההתקשרות מתחיל בבחינת ההתאמה המקצועית. לאחר מכן מוגשת הצעת מחיר מפורטת. ניתן לקבל הערכה ראשונית גם באמצעות הממשק הייעודי (בוט) שלנו, ללא התחייבות מראש. 😄

עם היציאה לדרך, מתקדמים לשלבים הבאים:
חתימה על הסכם עבודה וביצוע מדידות בשטח – אלו מהווים את התשתית המדויקת לתכנון המפורט.

אפיון מטרות, ציפיות, מסגרת תקציב ולוחות זמנים. שלב הפיתוח הקונספטואלי נמשך לרוב כשבועיים עד שלושה עד להצגת חלופות ראשוניות.

תכנון רעיוני וחלופות העמדה
גיבוש תוכנית מערך הריהוט (Layout). מתוך מגוון אפשרויות, הסטודיו מזקק את החלופות המדויקות ביותר עבור החלל ומציג אותן לבחינה מעמיקה.

הצגת הסקיצות מהווה שלב מכריע בדיאלוג המקצועי. משוב הלקוח מאפשר דיוק תכנוני וחשיפת רבדים נוספים של צרכים ורצונות המשפיעים על התוצאה.

לאחר בחירת הקו המוביל, מגובשת תוכנית סופית. במקביל, נבנה לוח השראה (Moodboard) המגדיר את השפה הוויזואלית והחומריות (Materiality), לעיתים בהשראת פרויקטים קודמים המהווים נקודת ייחוס.🙂😀

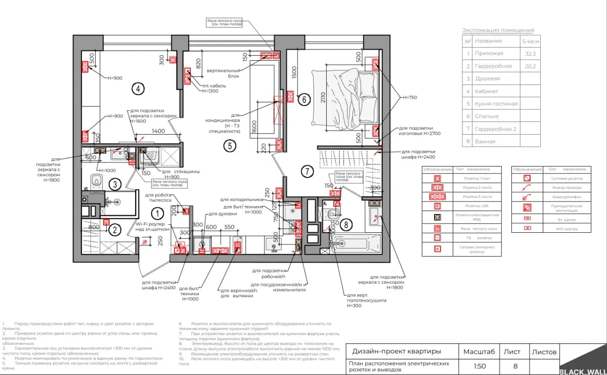
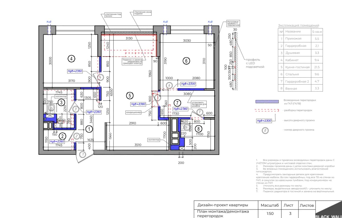
תוכניות עבודה והדמיות פוטו-ריאליסטיות
הפקה סימולטנית של הדמיות ותוכניות עבודה מפורטות. עבודה זו מאפשרת ייעול לוחות זמנים ומענה מהיר לצורכי הביצוע בשטח. 😭

משך התכנון הממוצע נע בין חודש וחצי לחודשיים. מעורבות הלקוח בשלב ההדמיות מהותית ליצירת Flow נכון ומדויק, תוך שמירה על תקשורת רציפה.

ביצוע, רכש ופיקוח עליון
עם המעבר לשלב הביצוע, מתחיל תהליך האוצרות והרכש (Bespoke Sourcing). בסיום שלב זה מוגש מפרט מפורט הכולל חומרי גמר, ריהוט, תאורה ורשימת ספקים מתואמת.

ליווי בבחירת חומרים וריהוט באולמות התצוגה מאפשר חוויה חושית של טקסטורות ונוחות. הסטודיו ערוך לניהול תהליכים מורכבים גם בממשק דיגיטלי מלא, ללא צורך במפגשים פיזיים.☺️

פיקוח עליון מבטיח את יישום התכנון המקורי בשטח, תוך דיוק פרטים עיצוביים וניהול תקשורת שוטפת מול הגורמים המבצעים.

בפרויקטים מורכבים מומלץ לשלב פיקוח הנדסי, האחראי על עמידה בתקנים ובאיכות הביצוע הטכנית באתר.



הלבשה (Styling), אבזור ויום צילומים 📸
השלב בו כלל האלמנטים מתגבשים לכדי חלל בעל זהות ייחודית – מטקסטיל ואמנות ועד לפרטים המשלימים המעניקים לבית את אופיו🍷

יום הצילומים חותם את הפרויקט. השאיפה ב-Black Wall היא ליווי מלא עד לפרט האחרון, ליצירת חלל מגורים שהוא יצירה שלמה ומוקפדת. ☺️❤️


























































